Back to top
Credit Union 1 Alaska Financial Center

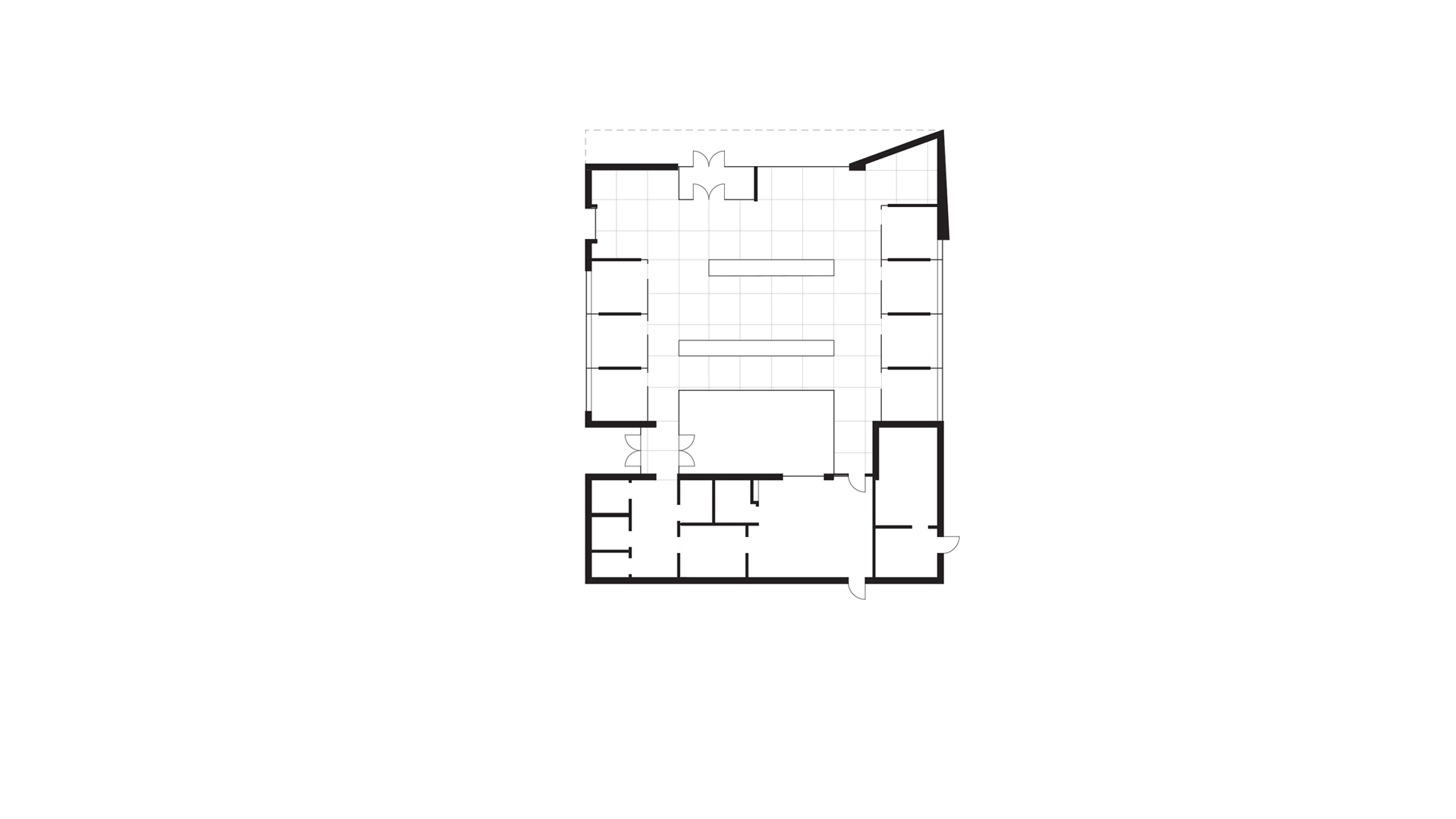
A new financial center concept and design for Credit Union 1 for their South Anchorage location. The building is a simple rectangle in plan and clad in iridescent metal panels for the front half of the structure. The main facade has a bold minimal facet to receive guests approaching from the front and right side. The overall building form is  treated as a monolithic box with some cuts and carves. The second half of the building is clad in a more cost-effective corrugated metal. 

Start date:
2019
Completion:
2021
Gross floor area:
2500 sf/ 230 sm
Client:
Credit Union 1 (Alaska)
Industry:
Financial Services
Design architect:
Brock Architecture
Architect of record:
Spark Design LLC
Lighting design consultant:
Lightplan
Back to top