Back to top
EECU Financial Center Concept/Hudson Oaks

EECU began as a credit union serving local teachers and school administrators in the Fort Worth area, and has expanded to a broad diverse membership and comprehensive service offering that includes personal banking, business, investments and insurance. They currently serve members throughout the Fort-Worth/Dallas area. 

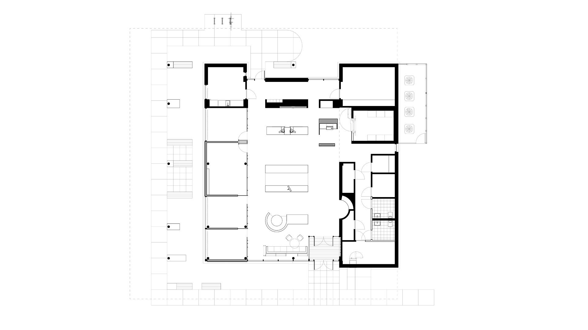
The new concept for a site in Hudson Oaks is a ground-up single story building with a large oversized roof that spans across the building and mediates sun on the south and east exposures.  The roof size and position was designed to block east and southeastern sun and allows for large areas of clear glazing and direct views into the space. The utilities are housed in a faced-concrete block mass positioned on the west side to block afternoon and evening sun, but a clerestory—concealed under the roof span—allows daylight to indirectly enter.  The block mass has a L-shape with a large opening on the backside to allow for sight lines through the whole building on the central axis. While seemingly very transparent, the design features block or mediate all direct sun while taking advantage of indirect daylight to minimize lighting needs during daytime hours. After-hours the building illuminates and glows like a beacon with the internal lighting bouncing off the slight bluish underside of the large roof canopy.

Start date:
2018
Completion:
On hold
Gross floor area:
3000 sf/ 278 sm
Client:
EECU
Industry:
Financial Services
Design architect:
Brock Architecture
Project Team:
Engineer:
HFA
Lighting design:
Light Plan
Experience design:
Design Made
Brand consultant:
Design Made
Back to top